Back to results

2a Tilehurst Road, Cheam SM3 8PB

£750,000

Overview

Brand new detached family home with 3 double bedrooms plus a large office / study.
The property also benefits from off street parking and is well located for schools and transport

  • Read More

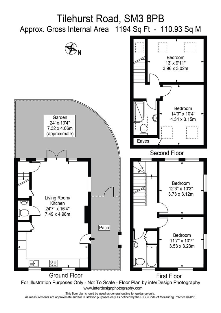
    Description
    A brand new family home, now fully completed and ready for immediate viewings, combining contemporary design, efficient modern systems and a highly practical layout for family living.

    Ground floor – open plan living
    The heart of the house is a superb open-plan kitchen/living/dining space running the full depth of the property, finished with elegant Clayton Dove Grey cabinetry and luxurious white mirror quartz worktops. Warm herringbone wood flooring flows throughout, with a Be Modern Midland Manila marble fireplace creating a focal point to the lounge area and wide triple-glazed bi-fold doors opening directly on to the garden for effortless indoor–outdoor entertaining. This level also benefits from practical built-in storage and a separate cloakroom/WC.

    First floor – two doubles and family bathroom
    On the first floor there are two generous double bedrooms, each finished with soft neutral carpets and plenty of natural light. These rooms are served by a well-appointed family bathroom fitted with contemporary sanitaryware and stylish tiling, creating a calm, modern space for everyday use.

    Top floor – flexible living and additional bathroom
    The top floor offers a further spacious double bedroom with triple-glazed roof windows, together with an additional room of similar size that works perfectly as a home office, study, dressing room or occasional guest room. A second bathroom on this level provides excellent flexibility for families, guests or those working from home.

    Throughout the house you will find quality finishes including Kronos titanium carpets, solid Iseo oak fire doors, double-glazed sash windows and Velux roof windows, all complemented by tasteful, modern lighting. A Daikin heat-pump system with 180L cylinder and a four-panel solar array support excellent energy efficiency, while outside there is a private driveway, electric car charging point and smart low-maintenance tiled areas.

    The property is sold with the reassurance of a 10-year new-build warranty, offering a stylish, ready-to-move-into home for buyers seeking space, flexibility and modern comfort.

    EPC Rating: Pending
    Council Tax: Awaiting assessment

    Location
    The property is within easy reach of Cheam Village and North Cheam’s shops, cafés and supermarkets, making day-to-day living very convenient. The area is popular with families, with several well-regarded schools nearby, including outstanding and good Ofsted-rated primaries plus respected independent options at prep and secondary level.

    Public transport is accessible via local bus routes on surrounding roads, linking to Sutton, Worcester Park and North Cheam, where you can pick up mainline rail services into central London, while road connections provide straightforward access by car across South West London and Surrey.

Arrange A Viewing

Calculator

Mortgage Calculator
Stamp Duty Calculator
×

Create an account to save properties