Back to results

Kingsdowne Road & Chamberlain Way, Surbiton KT6

£3,000,000

Overview

!! UNDER OFFER !! Freehold Care home & pair of semi-detached houses - Investment / Development Potential STP

Virtual Tour Available - Viewing Strictly by Appointment - Sole Agents

  • Read More

    The Site
    The site comprises three separate titles

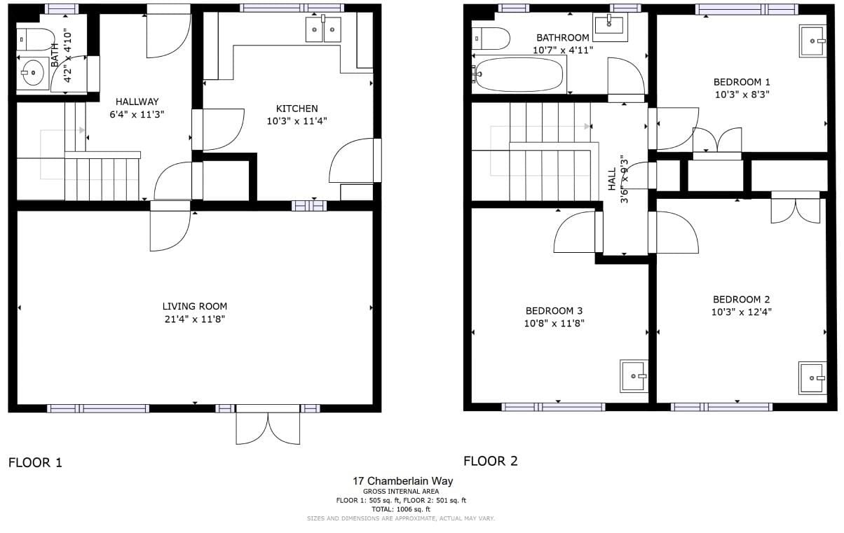
    17 Chamberlain Way, Surbiton, KT6 6JH (Title SGL811057)
    Three-bedroom semi-detached house in poor condition with front and rear gardens - Accessed via a private road - Council Tax Band E
    Use Class: C2

    Plot size: 0.090 acres
    GIA: TBC


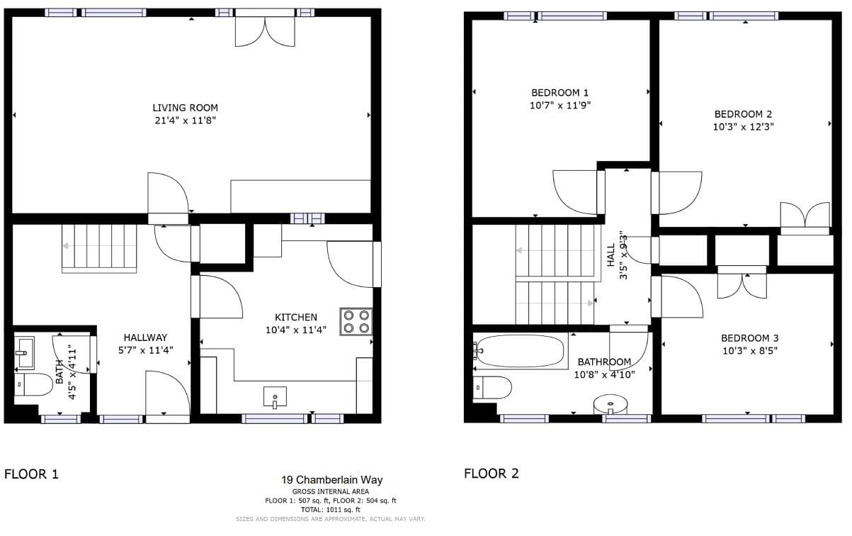
    19 Chamberlain Way, Surbiton, KT6 6JH (Title SGL811058)
    Three-bedroom semi-detached house in poor condition with front and rear gardens - Accessed via a private road - Council Tax Band E

    Plot size: 0.090 acres
    GIA: TBC


    8 Kingsdowne Road, Surbiton, KT6 6JZ (Title SY260080)
    Detached property currently in use as a care home (use class C2)
    The condition is fair although upgrading is required - Council Tax Band H

    Plot size: 0.590 acres
    GIA: Approximately 550 Sqm

    Total combined plot size: 0.770 acres

    Location
    The properties are situated in a residential location with a wide range of local and national retailers and bars / restaurants found just a 10-minute walk away

    Kingston Town Centre is less than 2 miles away

    Nearest Stations:
    Surbiton Railway is 0.5 miles (South Western Rail Services)
    Wimbledon Underground is 5.3 miles (District line services)

    Road Links:
    A3 at Tolworth - 1 mile
    M3 at Sunbury - 6.7 miles
    M25 at junction 9 - 6 miles

    Nearby Airports:
    Gatwick - 22 miles
    Heathrow - 9.5 miles

    Planning
    A search of the planning portal shows no current / recent applications on any of the subject properties

    Interested parties should rely on their own investigations to the local planning authority. Royal Borough of Kingston Upon Thames

    Green Belt - No
    Flood Zone - No
    Conservation Area - No
    Article 4 Area - No

    EPC Ratings
    8 Kingsdowne Road - Energy Rating C
    17 & 19 Chamberlain Way - Energy rating D - Potential B

    Terms
    Offers In Excess of £3,000,000 Freehold are sought

    Be advised that conditional offers subject to planning are not being considered

    Vacant possession will be provided on completion

    Viewings
    Strictly by appointment only through sole agents Christopher St James

    Please do not approach staff or tenants

Arrange A Viewing

Calculator

Mortgage Calculator
Stamp Duty Calculator
×

Create an account to save properties