Back to results

10 Brighton Road, Crawley RH10 6AA

£40,000 pa

Overview

Shop & Flat To Let - Busy Road - Take Away Unit or other uses.
Entire building available on a new lease with terms to be agreed by negotiation

  • Read More

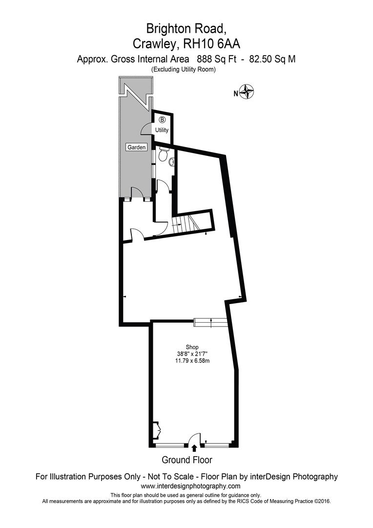
    Description
    ** Shop & Flat To Let **
    Available to let is this entire building comprising a ground floor former takeaway unit with residential accommodation arranged over the first and second floors.

    The flat includes a lounge, four bedrooms, a kitchen, and a family bathroom, with rear access to both the residential and commercial areas.
    The premises have been stripped out by the previous tenant and freshly painted throughout.

    Location
    The property occupies a prominent position on Brighton Road close to Crawley town centre, with direct frontage to a key arterial route carrying consistent vehicular and pedestrian movement.

    Crawley railway station is approximately 5 minutes' walk away and offers regular direct services to London Victoria in around 43–51 minutes and to London Bridge in approximately 46–55 minutes, via both Southern and Thameslink operators.

    Strong road connectivity is provided by the nearby A23 and M23, giving direct access to Gatwick Airport and the M25, and the property is well served by local bus routes linking the town centre and surrounding residential areas

    Business Rates
    Interested parties are advised to make their own enquiries with the local authority and to verify the current rateable value with the Valuation Office Agency.

    Rent & Lease
    Guide Rent £40,000 pa

    Premium £15,000

    A new FRI lease is available with final terms to be agreed by negotiation

Arrange A Viewing

Calculator

Mortgage Calculator
Stamp Duty Calculator
×

Create an account to save properties