Back to results

2 Vulcan Way, New Addington, Croydon CR0 9UG

£1,500,000

Overview

** Calling occupiers / Investors & developers ** Substantial, modern light industrial unit in one of South London's most established and well-connected commercial locations.

  • Read More

    Description
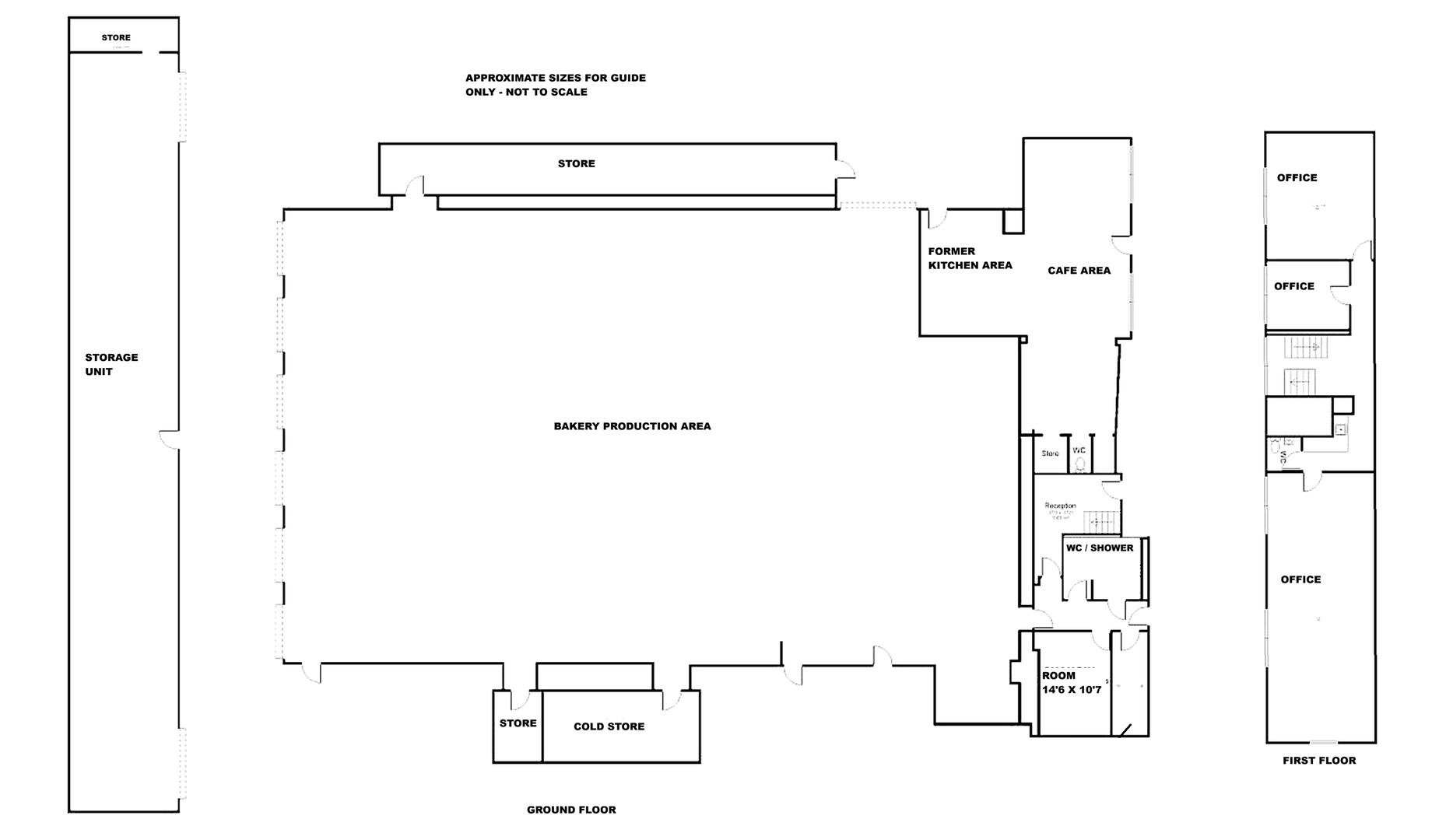
    FOR SALE - BAKERY - OFFICES - STORAGE - YARD SPACE - INDEPENDANT CAFE - POTENTIAL DEVELOPMENT
    An exceptional opportunity to acquire the freehold of a substantial, modern light industrial unit in one of South London's most established and well-connected commercial locations.

    The property extends to approximately 12,312 sq ft GIA (c. 1,143.8 sq m) on a self-contained site of circa 0.60 acres, offering a rare combination of scale, specification and flexibility rarely found at this price point within Greater London.

    The unit is steel-frame construction with plastic-coated corrugated steel cladding, aluminium roller-shutter and personnel doors, and uPVC double-glazed windows throughout.

    Location
    Situated on Vulcan Way in New Addington, Unit 2 sits at the heart of one of the borough's most active and long-established industrial locations. New Addington is a well-connected commercial suburb positioned approximately 5 miles south-east of Croydon town centre, and within the London Borough of Croydon.

    The estate is conveniently situated away from residential congestion whilst remaining within minutes of the full range of local amenities offered by New Addington town centre, which is less than one mile away and includes shops, cafés, restaurants, banks and supermarkets

    M25 (Junction 6) — via the A22, providing fast connections to the M23, M26 and wider national road network
    A212 and A233 — principal arterial routes linking the estate directly to Croydon, Bromley and beyond
    Biggin Hill Airport — less than 10 minutes' drive, offering charter and business aviation facilities
    Croydon town centre — approximately 5–6 miles, reachable in 12 minutes by car

    Accommodation
    Industrial/warehouse floorspace 688.31 sqm (7,409 sq ft)
    Office/cafeteria/staff quarters 263.41 sqm (2,835 sq ft)
    Outbuilding/store 167.64 sqm (1,805 sq ft)
    Reduced height eaves store 24.44 sqm (263 sq ft)
    Total floor area 1143.8 sqm (12,312 sq ft)

    Income Potential
    We estimate the annual rent to be circa £175,000 representing a yield of over 11.5% based on the current guide price

    Terms
    The property is priced for quick sale and is offered freehold with vacant possession
    Offers in excess of £1,500,000 are invited

    VAT
    We understand the property is not elected for VAT

    Services
    Mains services connected to the property are gas, electricity, water and drainage. Heating and hot water for the front section and cafeteria are provided via a wall-mounted
    combination boiler. These have not been checked by CSJ

Arrange A Viewing

Calculator

Mortgage Calculator
Stamp Duty Calculator
×

Create an account to save properties