Back to results

1 Approach Road, Raynes Park, London SW20

£550,000

Overview

Developer / Investor / Owner occupier opportunity
Two storey unbroken freehold located just minutes to Raynes Park Station

  • Read More

    Description
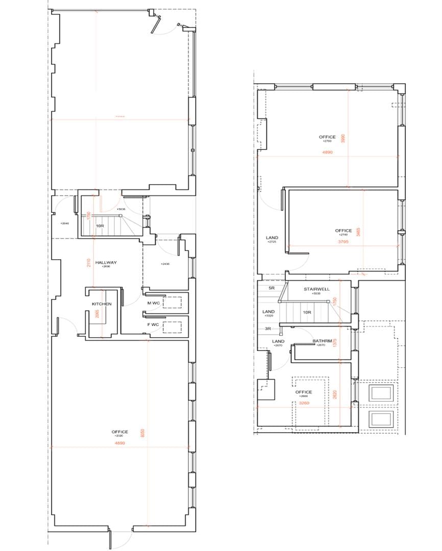
    Prominent end terrace freehold for sale of interest to developers / investors & occupiers
    Comprises retail space to the front with W/C and separate kitchen and open plan office to the rear at ground floor level with three further office rooms and bathroom at first floor.

    The property benefits from both front and side access points

    Accommodation
    Ground Floor: 103 sq.m. (1108 sq.ft)
    First Floor: 56.5 sq.m. (608 sq.ft)
    There is not outside space with the property.
    Parking is on street

    Location
    The property occupies a corner position on Approach Road at its junction with Prince Georges Road and is situated within a mixed use parade ideally positioned for transport links.
    Raynes Park station is just 0.2 miles (approximately 4 minutes’ walk) and offers frequent South Western Railway services to London Waterloo in around 21–23 minutes, as well as direct trains to Guildford, Dorking, and other Surrey destinations.

    Wimbledon Chase station is 0.7 miles (about 14 minutes’ walk) with Thameslink services to Sutton and Central London via Blackfriars.

    Wimbledon station, 1.3 miles from the property (approximately 30 minutes’ walk), provides mainline, District Line Underground, and Tramlink connections, giving fast access to Central London and beyond. This location is perfect for commuters seeking quick and convenient travel across London and the South East.

    Planning
    The unit would suit a variety of alternative uses including residential subject to the relevant consents.

    Terms
    Unconditional offers in excess of £550,000 are invited

    Viewing
    Contact sole agents
    Christopher St James 020 8545 0591

Arrange A Viewing

Calculator

Mortgage Calculator
Stamp Duty Calculator
×

Create an account to save properties