Back to results

Clapham Common South Side, Clapham, London

£250,000
Arrange a viewing

Overview

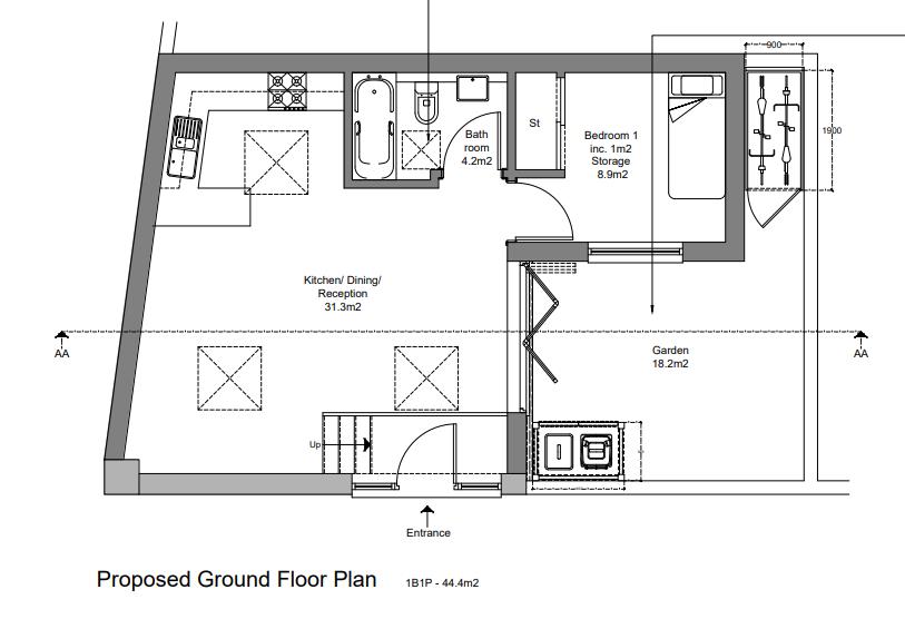
Freehold single build plot with planning granted subject to S106 for a modern 1 bedroom dwelling with courtyard

  • Read More

    Description
    1 Bed single storey building beneath a flat roof with outside space and planning to create a modern 1 bed flat with courtyard

    Location
    The site sits to the rear of 56 Clapham Common Southside with frontage onto Elms Road with easy access to transport links such as Clapham Common/Clapham South tube stations

    Planning
    Permission for Demolition of the existing building and erection of a new one-bedroom residential building subject to a Signed 106 Agreement.
    Ref: 23/00081/FUL
    Local Authority : Lambeth Council

    Terms
    Offers are invited in excess of £250,000

    CIL: £0
    S106: Car free

    Viewings
    Contact sole agents Christopher St James 020 8296 1270

    Data Room
    Data Room Password: clapham1

Arrange A Viewing

Calculator

Mortgage Calculator
Stamp Duty Calculator
×

Create an account to save properties