Back to results

234 – 250 Mitcham Road, Tooting, London SW17

£75,000 pa

Overview

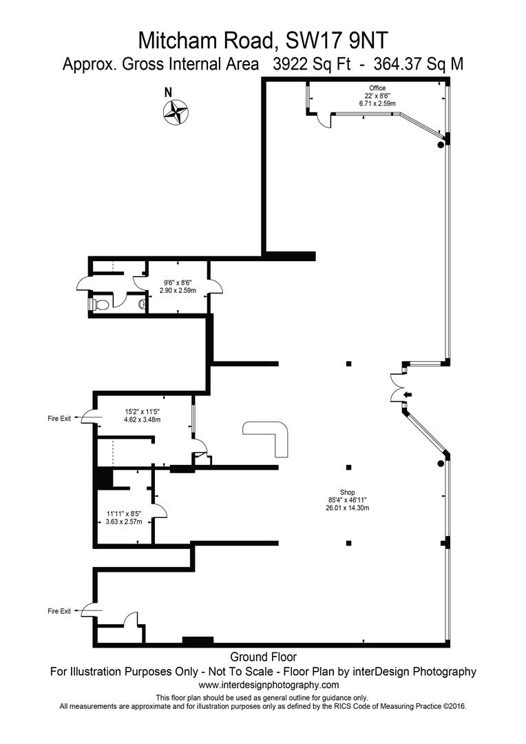
** Large unit - May split - Gyms / Nurseries / Retail or other ** E Class ground floor commercial space extending to approx 3922 sq ft (364 sqm) with a wide 85 ft (26 m) frontage.

  • Read More

    Description
    A prominent E Class ground floor commercial unit offering approximately 3,922 sq ft (364 sqm) of largely open-plan space with an impressive 85 ft (26 m) glazed frontage, ideal for strong branding and display to passing trade.

    Suitable for a wide range of commercial uses including gyms, nurseries, retail, medical, office or other Class E uses, giving excellent flexibility for different operators and future-proofing the occupation.

    The generous floor plate and regular layout make it straightforward to plan fitness studios, classrooms, open-plan retail, treatment rooms or a hybrid concept combining several activities.

    Location
    Mitcham Road is conveniently located for the many cafes, restaurants and bars of Mitcham Road and Furzedown Village and is beautifully complimented with a vast array of transport links with Tooting Overground and Tooting Broadway Underground Stations a short walk away.

    Nearest BR Station: Tooting Rail station is 400 ft away providing Thameslink services
    Nearest Underground Station: Tooting Broadway providing northern line services

    Terms
    New lease with terms to be agreed by negotiation with available move in date to be confirmed
    Guide Rent £75,000 per annum

    Offers to split the unit will also be considered

    Viewings
    Contact Christopher St James 020 8296 1273

Arrange A Viewing

Calculator

Mortgage Calculator
Stamp Duty Calculator
×

Create an account to save properties