Back to results

Upper Tooting Road, Tooting, London SW17

£24,500 pa

Overview

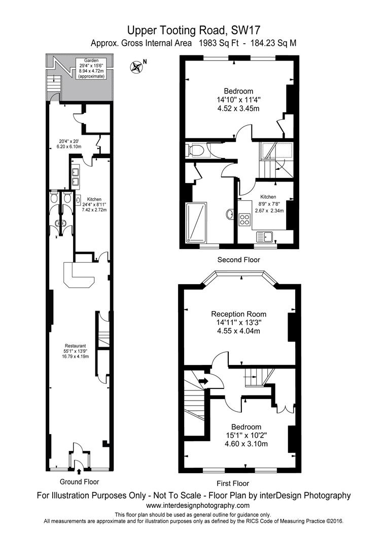
Lease Assignment… Restaurant Premises with 2 bed flat and garden... Available Now... Rent: £24,500p/a + VAT.
Premium: £100,000.

  • Read More

    Description
    An excellent opportunity to take over the lease assignment of restaurant premises located on Upper Tooting Road. The property includes a 2-bedroom split-level flat, ideal for owner-occupiers or staff accommodation.

    Currently trading as Kolam South Indian Restaurant, the current tenants are looking to sell on their remaining 11 year lease to include all fixtures and fittings.

    A list of fixtures and fittings available on request.

    Location
    The property is situated within a very busy High Street location surrounded by a range of bars, restaurants and shops.
    Tooting Bec Underground Station (NL) 0.2 miles

    Terms
    Rent : £24,500p/a + VAT
    Premium / Goodwill: £100,000
    Rent Review: 2 November 2026

    Rates
    Interested parties are advised to make their own enquiries with the local rating authority.

    Viewings
    Strictly by appointment only - Do not approach staff
    Contact Sole Agents - Christopher St James on 020 8296 1273

Arrange A Viewing

Calculator

Mortgage Calculator
Stamp Duty Calculator
×

Create an account to save properties