Back to results

Unit 6, 24 Willow Lane, Mitcham, London CR4

£450,000

Overview

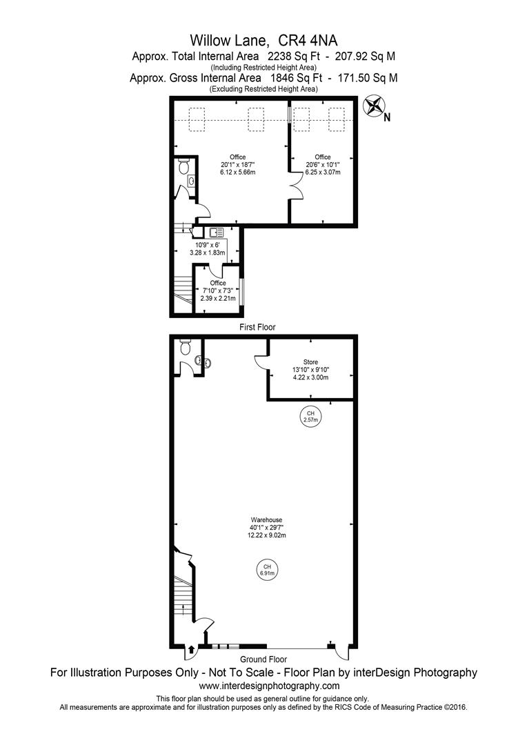
Freehold industrial unit for sale with vacant possession - Approximately 2,050 sq ft

  • Read More

    Description
    Freehold E class (Former B1) unit situated on a busy South London Industrial Estate.
    The property is currently occupied and run as a joinery with all associated equipment including extraction / filter which can be included in any sale subject to negotiation.

    Comprises open plan workshop with two storage rooms and W/C to the ground floor with three offices, kitchen area and W/C to the first floor, immediately outside to the front is an area used for parking with a separate parking area for 2 cars around the corner.

    The front is designed so that the ground and first floor can be self contained with the left hand door providing access to the office and the roller shutter / pedestrian doors to the right giving entry to the factory

    Location
    Unit 6, 24 Willow Lane, CR4 is located in Mitcham's Willow Lane Industrial Estate. It's about 0.5 miles from Mitcham Junction station, offering rail and tram connections to central London. The property has good road access, with the A23 and A217 nearby, providing routes to London and the M25 motorway. This location offers excellent connectivity for businesses, balancing proximity to London with access to wider distribution networks.

    Terms
    Offers are invited for the Freehold interest with vacant possession
    Guide Price £450,000

    Viewings
    Contact sole agents
    Christopher St James 020 8296 1270

Arrange A Viewing

Calculator

Mortgage Calculator
Stamp Duty Calculator
×

Create an account to save properties