Back to results

Handcroft Road, Croydon, Surrey CR0 3LE

£75,000 pa

Overview

Rent or Buy - Calling Investors - Occupiers - Developers
Freehold Industrial unit - Suitable for alternative uses - Vacant possession on completion

  • Read More

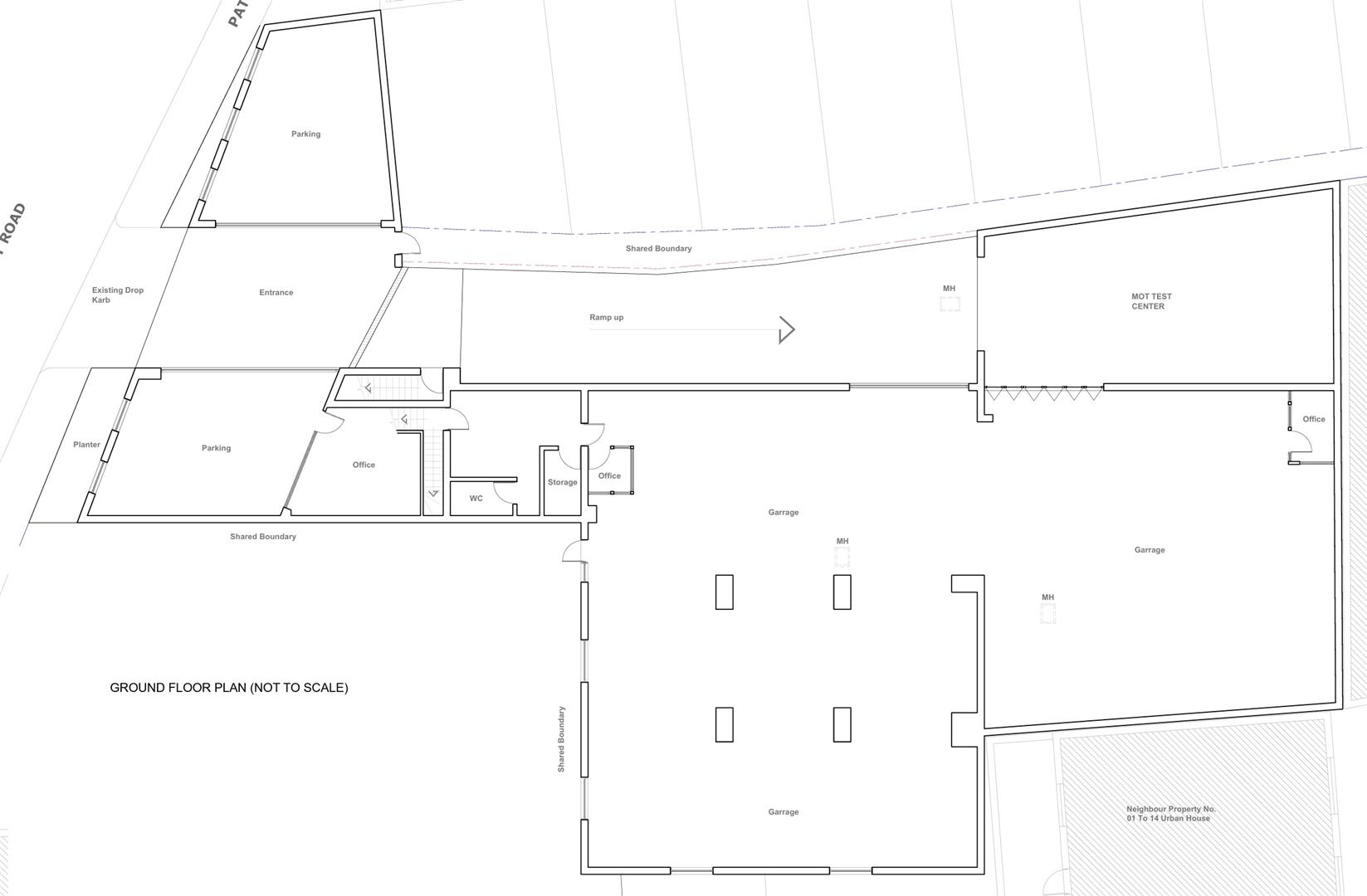
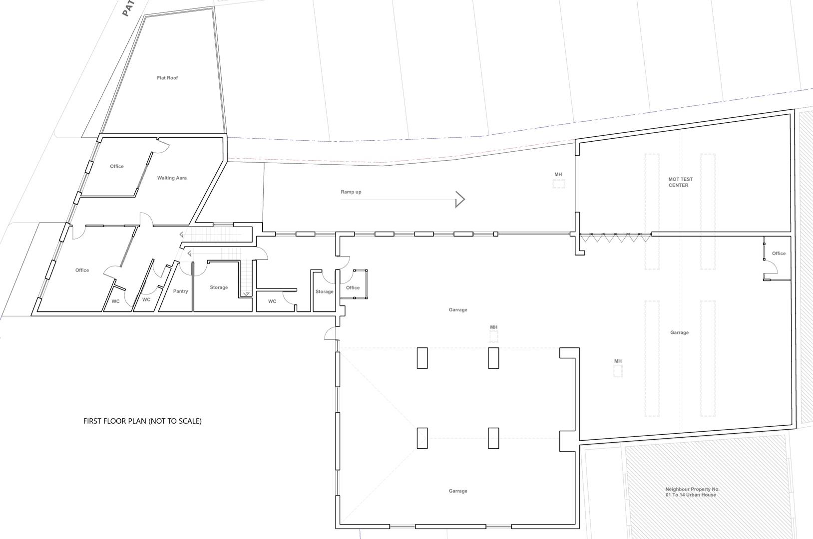
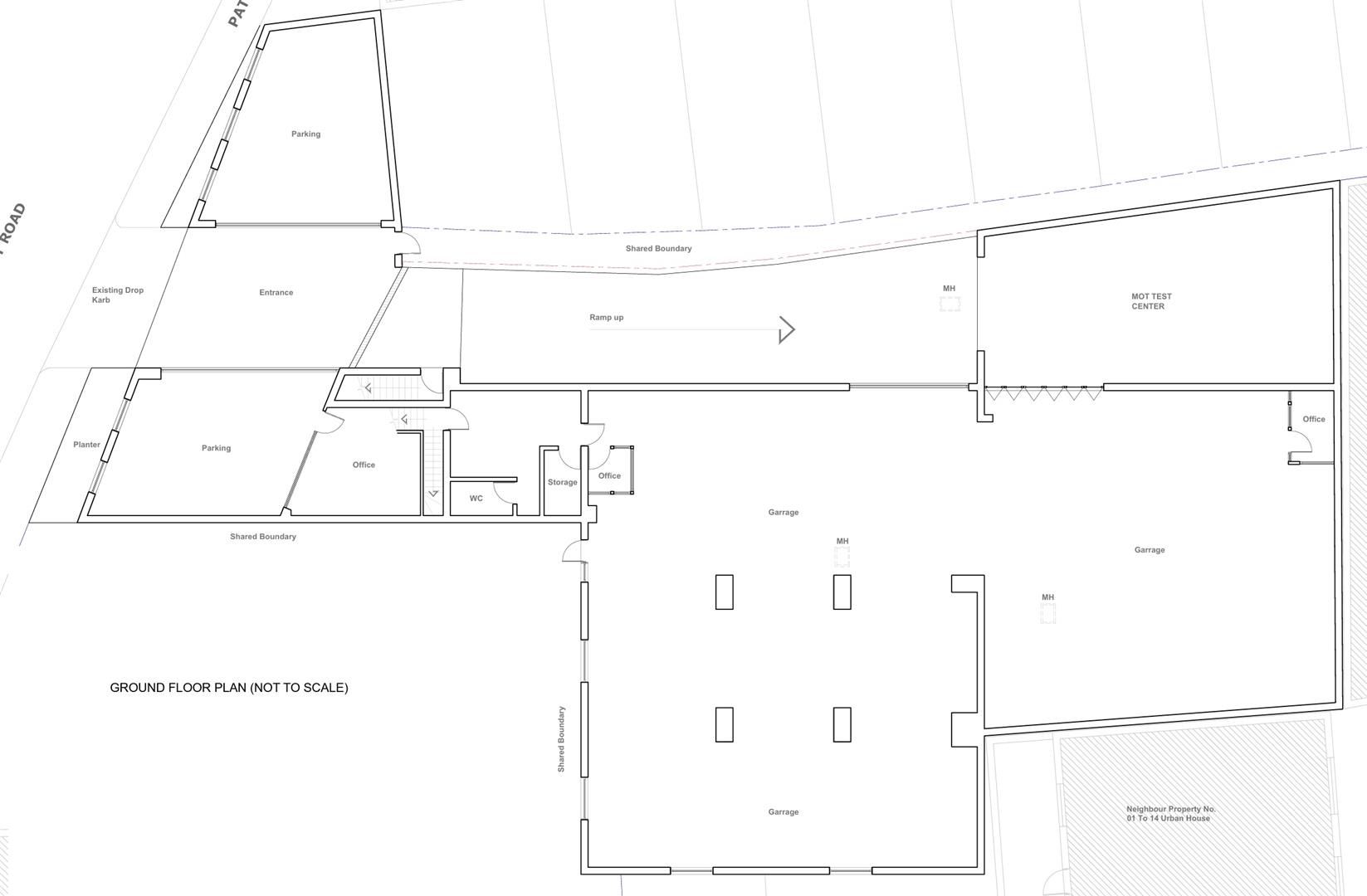
    Description
    Rent or Buy
    Industrial property suitable for a range of alternative uses including re development subject to the relevant consents.
    The property is currently used as car repair garage and comprises workshop space with MOT and lift area, offices and store rooms
    Approximate GIA - 660 sqm (7,101 sq ft)
    Plot size: 0.2

    Location
    The property is situated North West of Central Croydon and offers excellent transport links

    Rail
    - West Croydon station: 0.5 miles away offering London Overground, Southern, and Thameslink services
    - East Croydon station: 1 mile away with Fast services to central London (15-20 minutes to London Bridge/Victoria) and direct trains to Gatwick Airport and Brighton

    Tram
    - West Croydon tram stop: 0.5 miles away connecting Wimbledon, Beckenham, and New Addington

    Road
    - Near A23 (to central London) and A232
    - Approximately 15 miles from M25

    Planning
    Possible uses STP - Education, religious, manufacturing, distribution and more
    In September 2024 an Outline planning application for 20 flats was refused by Croydon - Ref: 24/00279/OUT
    We feel with more attention to detail and consideration to planning policies that a comprehensive resi or mixed use scheme would be allowed

    Terms
    Available with a new lease - terms to be agreed by negotiation £75,000 pa
    Sale: Guide price £1,000,000

    Viewings
    By appointment only
    Contact sole agents CSJ 020 8296 1270

Arrange A Viewing

Calculator

Mortgage Calculator
Stamp Duty Calculator
×

Create an account to save properties