Back to results

Brand New Home, All Saints Road, Wimbledon, London

£600,000

Overview

Brand new two bedroom detached house with additional office space located close to Central Wimbledon. 10 year NHBC warranty. Complete and ready to view. Call CSJ today

  • Read More

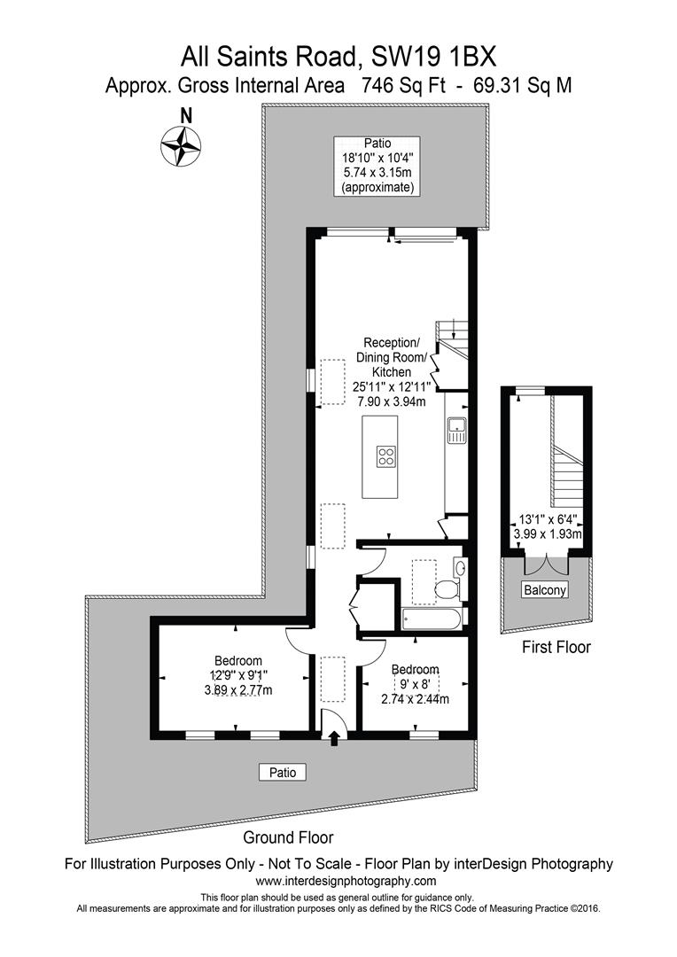
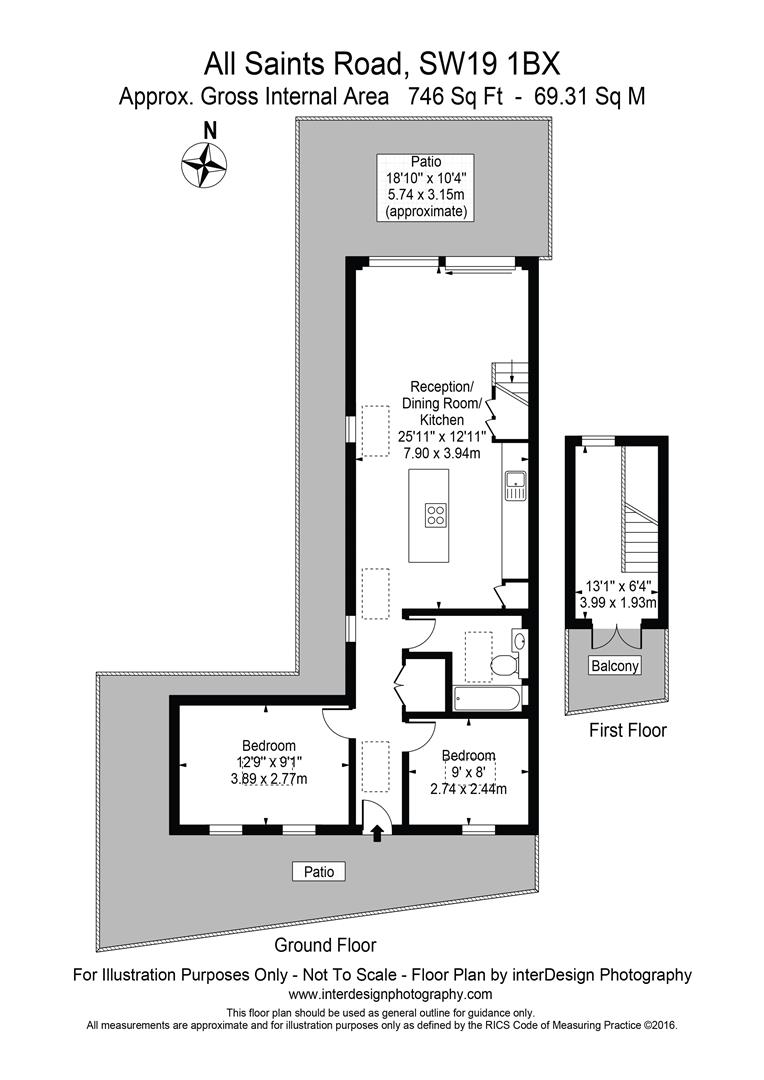
    Description
    Now complete and ready to view this brand new home comprises two double bedrooms, family bathroom, open plan lounge / dining / kitchen to ground floor with a small office / study at first floor.

    Outside to the front, side and rear is private gardens. Images are computer generated.

    Location
    All Saints Road is well-connected, with Haydons Road station just 0.4 miles away and Wimbledon station about 0.9 miles, offering rail and Underground access via the District Line. The Northern Line is accessible at South Wimbledon 0.4 miles away. The area is good for education, with All Saints' CofE Primary School (Ofsted rating - Good), Harris Academy Wimbledon (Ofsted rating - Outstanding) and St Mary's Catholic Primary School (Ofsted rating - Good)are all less than 0.5 miles away.

    Shopping opportunities are also close with a range of boutique and independant businesses with national retailers found in The Tandem Centre retail park 0.5 miles away, Wimbledon Quarter Shopping Centre 0.9 miles and Southside Shopping Centre in Wandsworth, roughly 2.9 miles providing a variety of stores and entertainment facilities.

    Specification
    •Architect designed house built to high energy efficiency standards
    •High performance, ultra-modern aluminium clad timber triple glazed windows
    •Mechanical Ventilation with Heat Recovery (MVHR) continuously providing fresh filtered air whilst maintaining warmth via a heat exchanger.
    •Air Source Heat Pump (ASHP) with underfloor heating providing consistent thermal comfort throughout while lowering your energy bills
    •Stylish, dimmable, LED lighting throughout the property
    •Fully fitted kitchen with branded appliances and quartz worktops
    •Sliding doors leading to private rear garden
    •First floor office with private south facing roof terrace
    •Side access to the rear of the property
    •Modern detailing with clean lines and shadow gap reveals
    •Skylights throughout the property delivering daylight into every room.

    Viewing
    Strictly by appointment only Contact sole agent Christopher St James 020 8296 1270

Arrange A Viewing

Calculator

Mortgage Calculator
Stamp Duty Calculator
×

Create an account to save properties