Back to results

Beulah Road, Sutton, London SM1

£775,000

Overview

Fully Refurbished HMO investment for sale with 6 en suite rooms located close to West Sutton Station and Town Centre - Full planning and new 5 year license

  • Read More

    Description
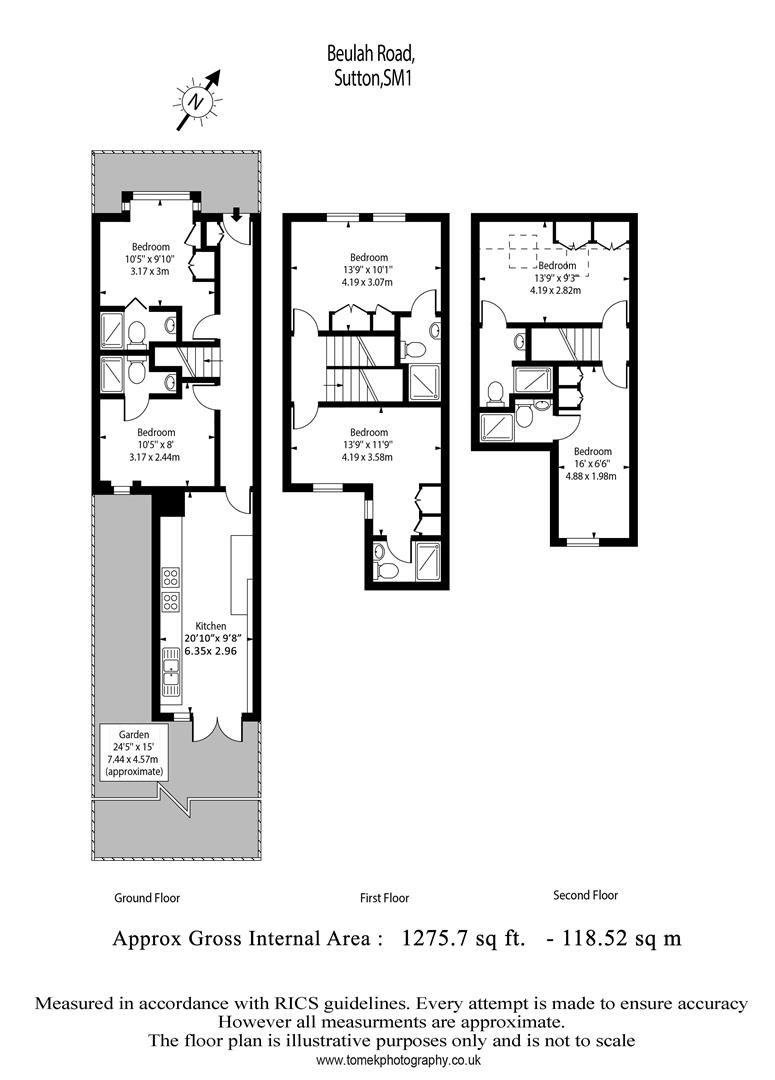
    Income Producing HMO Investment For Sale

    The property was extended and completely renovated to a high standard in November 2024 and now boasts six ensuite bedrooms with communal kitchen and private garden.

    Location
    Beulah Road, Sutton, is a well-connected residential area just 7 minutes’ walk from West Sutton station and 15 minutes from Sutton mainline station, both of which offer Thameslink and Southern trains to Central London, Victoria, London Bridge, Wimbledon, and St Albans.

    Multiple frequent bus routes (80, 154, 164, 213, 280, 407, S1, S2, S3, S4, and N44), with stops just minutes away, serving destinations such as Croydon, Wimbledon, Banstead, and Wallington.

    Sutton High Street and the Nicholas Centre are nearby for shopping and daily needs and Collingwood Recreation Ground is also within walking distance for leisure and green space.

    Income
    Fully occupied on a room by room basis to 5 individual professionals & 1 mature student
    All let on ASTs with a combined income of £69,660 per annum

    Planning & License
    The property benefits from Use class C4 and was also granted a new 5 year license expiring 2030

    Terms
    Guide Price £775,000 which reflects a yield of circa 9%

    Viewing
    A professional video is available on request - Internal inspection available by appointment only through sole agents Christopher St James 020 8296 1273

Arrange A Viewing

Calculator

Mortgage Calculator
Stamp Duty Calculator
×

Create an account to save properties